170" Modified Beach House CNC Files
170" Modified Beach House CNC Files
Couldn't load pickup availability
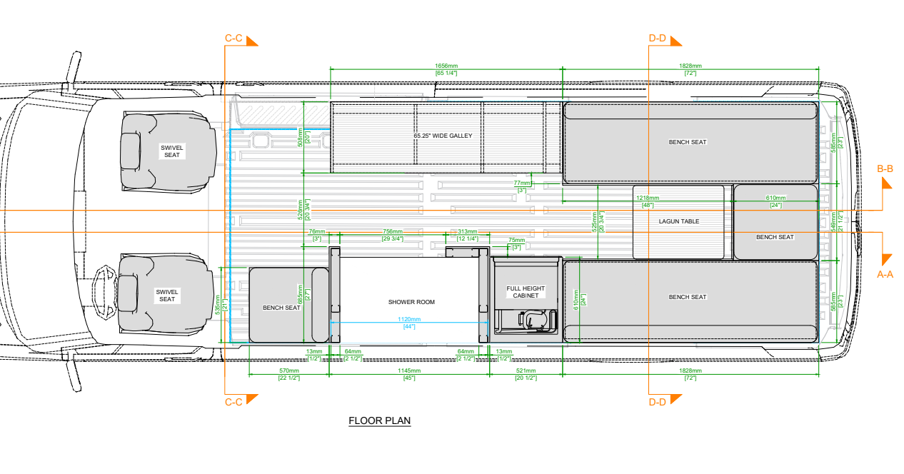
Bring coastal comfort and modern functionality to your 170" Sprinter build with our Modified Beach House CNC Layout Package. This design blends open space, clean lines, and smart storage — featuring a spacious galley, full-height shower, flexible seating with a Lagun table, and a convertible table/bed area perfect for road trips or full-time living.
Specifically created for the 170" Mercedes Sprinter, this layout strikes the perfect balance between livability and travel functionality. Purchasing these CNC files saves you hundreds of hours in design and templating, giving you a professionally crafted foundation for a stunning, high-quality build.
👉 This CNC file package includes:
• Full cabinetry cut files for the galley, bed benches, overhead cabinets, and front bench area
• Detailed floor plan with exact specs for this 170" Sprinter layout
• Professional assembly drawings with clear visuals to guide construction
Who This Is For:
• DIY builders ready to tackle a larger 170" Sprinter project
• Professional builders looking for a proven, modern layout
• Anyone seeking a clean, minimalist coastal-inspired van interior
Why Use CNC Files:
• Save time and eliminate costly design mistakes
• Optimized for efficient, comfortable living in a 170" Sprinter
• Achieve a professional fit and finish without starting from scratch
• Built by experts with real-world experience in custom van life builds
Please note: All sales are final. Because this is a digital product, once purchased, it is considered used and cannot be returned or refunded.
Share



